10219 W Hwy 2
Medical Lake WA 99022
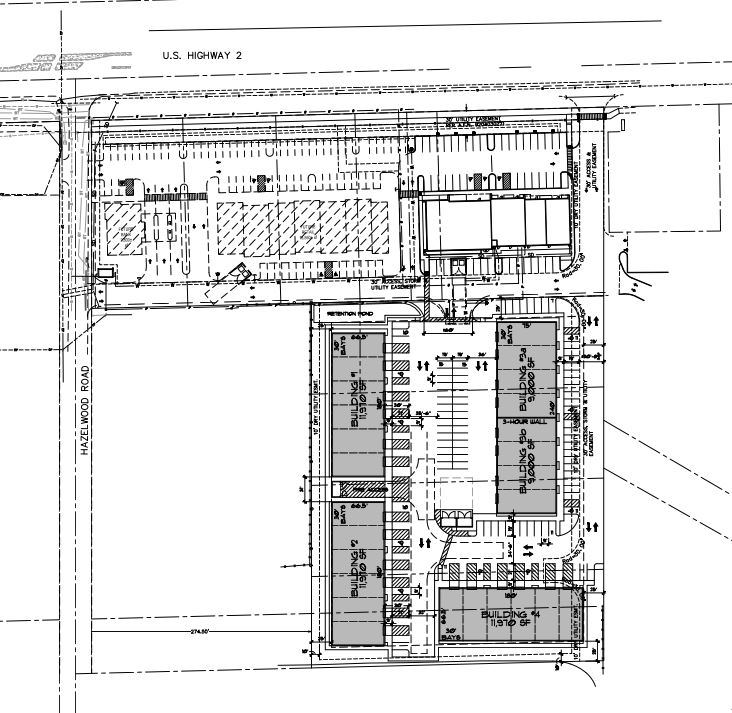
Hazelwood Business Park
10219 W Hwy 2 Medical Lake WA 99022
Listing #: 654434 | Status: Available | Last Modified: 4/16/2026 |
For Lease
Bryan Walker
- Phone:(509) 622-3593
- Email:bwalker@naiblack.com
- Office Name:Black Commercial, Inc.
- Office Phone:(509) 623-1000
- Office Website:
Jesse Clark
- Agent Phone:(509) 622-3534
- Agent Email:jesse.clark@naiblack.com
Showing Instructions
- Call Listing AgentNo
- Use DiscretionNo
Price Information
- Blended Rent Min$ 01.0
- Blended Rent Max$ 01.0
- Total Monthly Rent$ 50,000.0
- Office Rent Min$ 00.0
- Office Rent Max$ 00.0
- Shell Rent Min$ 00.0
- Shell Rent Max$ 00.0
- Lease TypeOther
- Listing StatusAvailable
- Days on Market1386
- Asset ClassIndustrial
Space Information
- Suite/Space InfoHazelwood Business Park
- Currently Vacant50000
- Frontage
- Available SF50000
- Divisible To5000
- Floor Number
- Sub Lease Terms
- Availability Status
- Date Available
- Move In Terms
Associated Files
Building Information
- Building StatusProposed
- # of Buildings4
- # of Floors1
- # of Units
- # of Elevators
- Clearance Height Min
- Clearance Height Max
- Bay Depth
- Total Building SF50000
- Net Rentable Area0
- Total Office SF
- Largest Contiguous SF
- Lot SF166399
- Acres3.82
Property Type
- Property TypeIndustrial
- Office Type
- Building Class
Location
- CountySpokane
- Vicinity
- Location Description
- Second Address
- Cross Street
- Market AreaWest Plains
- Tax ID #25302.0406
- Additional Parcels25302.0407, 25302.0408, 25302.0409, 25302.0410
- ZoningC-2
Hazelwood Business Park
Public Comments
For additional information please see flyer and contact listing brokers. Call for lease rates. Build-to-Suit
Listing Images
