23717 Bothell-Everett Hwy
Bothell WA 98021

23717 Bothell-Everett Hwy

23717 Bothell-Everett Hwy Bothell WA 98021

Listing #: 701843 | Status: Available | Last Modified: 11/20/2025 |

For Lease
Talor Okada
  • Phone:(425) 492-5145
  • Email:talor.okada@colliers.com
  • Office Name:Colliers International WA, LLC
  • Office Phone:(425) 453-4545
  • Office Website:
Richie Sander
Jack Heed
Showing Instructions
  • Call Listing AgentNo
  • Use DiscretionNo
Price Information
  • Min Rent per SF$ 28.0
  • Max Rent per SF$ 28.0
  • Office Rent Min$ 00.0
  • Office Rent Max$ 00.0
  • Shell Rent Min$ 00.0
  • Shell Rent Max$ 00.0
  • Total Monthly Rent$ 7,441.0
  • Lease TypeNNN
  • NNN Expense$ 09.3
  • Listing StatusAvailable
  • Days on Market102
  • Asset ClassOffice
Space Information
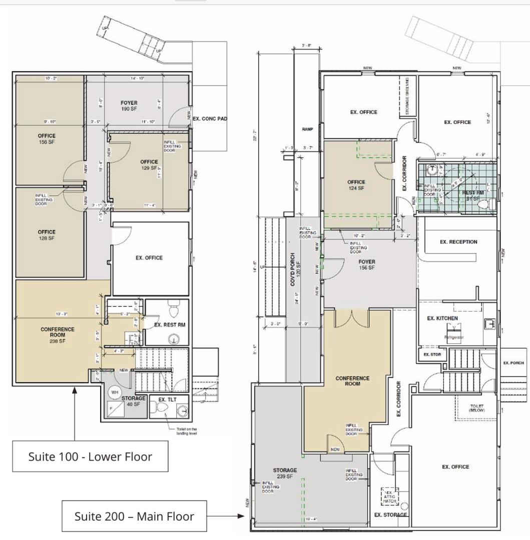
  • Suite/Space Info100 / 200
  • Currently Vacant
  • Frontage
  • Available SF3189
  • Divisible To1938
  • Floor Number
  • Sub Lease Terms
  • Availability Status
  • Date Available
  • Move In Terms
Building Information
  • Building StatusExisting
  • # of Buildings1
  • # of Floors2
  • # of Units
  • # of Elevators
  • Clearance Height Min
  • Clearance Height Max
  • Bay Depth
  • Total Building SF3189
  • Net Rentable Area3189
  • Total Office SF3189
  • Largest Contiguous SF
  • Lot SF35284
  • Acres0.81
Property Type
  • Property TypeOffice
  • Office Type
  • Building ClassC
Location
  • CountySnohomish
  • Vicinity
  • Location Description
  • Second Address
  • Cross Street
  • Market AreaWoodinville/Bothell/Kenmore
  • Tax ID #27053100300300
  • Additional Parcels
  • ZoningR-4000/OP/CB
Construction
  • Year Built1965
  • Year Renovated2026
  • Completion Date
  • Roof Type
  • Construction Type

Office For Lease - 23717 Bothell-Everett Hwy

Public Comments

• 3,189 SF Total (divisible to 1,938 SF) Suite 100: 1,251 SF Suite 200: 1,938 SF • Full interior/exterior renovation in progress – project set for completion by Q1 2026 • Existing layout includes multiple restrooms, kitchen, private offices, and reception area • Ample On-Site Parking (4 Stalls per 1,000 SF) • Frontage along Bothell Everett Hwy with easy access to retail amenities • Tenant Improvement Allowance available for qualified tenants – please inquire with listing brokers • Excellent signage opportunity at a signalized intersection (20,237 vehicles per day) • Outdoor patio with picnic area and Territorial Views