600 W Wilbur Ave
Coeur D Alene ID 83815
600 W Wilbur Avenue
600 W Wilbur Ave Coeur D Alene ID 83815
Listing #: 704231 | Status: Available | Last Modified: 10/30/2025 |
For Lease
- Phone:(208) 691-6003
- Email:Danny@tokcommercial.com
- Office Name:TOK Commercial
- Office Phone:(208) 449-1908
- Office Website:
- Call Listing AgentNo
- Use DiscretionNo
- Blended Rent Min$ 10.8
- Blended Rent Max$ 10.8
- Total Monthly Rent$ 583,200.0
- Office Rent Min$ 00.0
- Office Rent Max$ 00.0
- Shell Rent Min$ 00.0
- Shell Rent Max$ 00.0
- Lease TypeNNN
- NNN Expense$ 00.0
- Listing StatusAvailable
- Days on Market49
- Asset ClassIndustrial
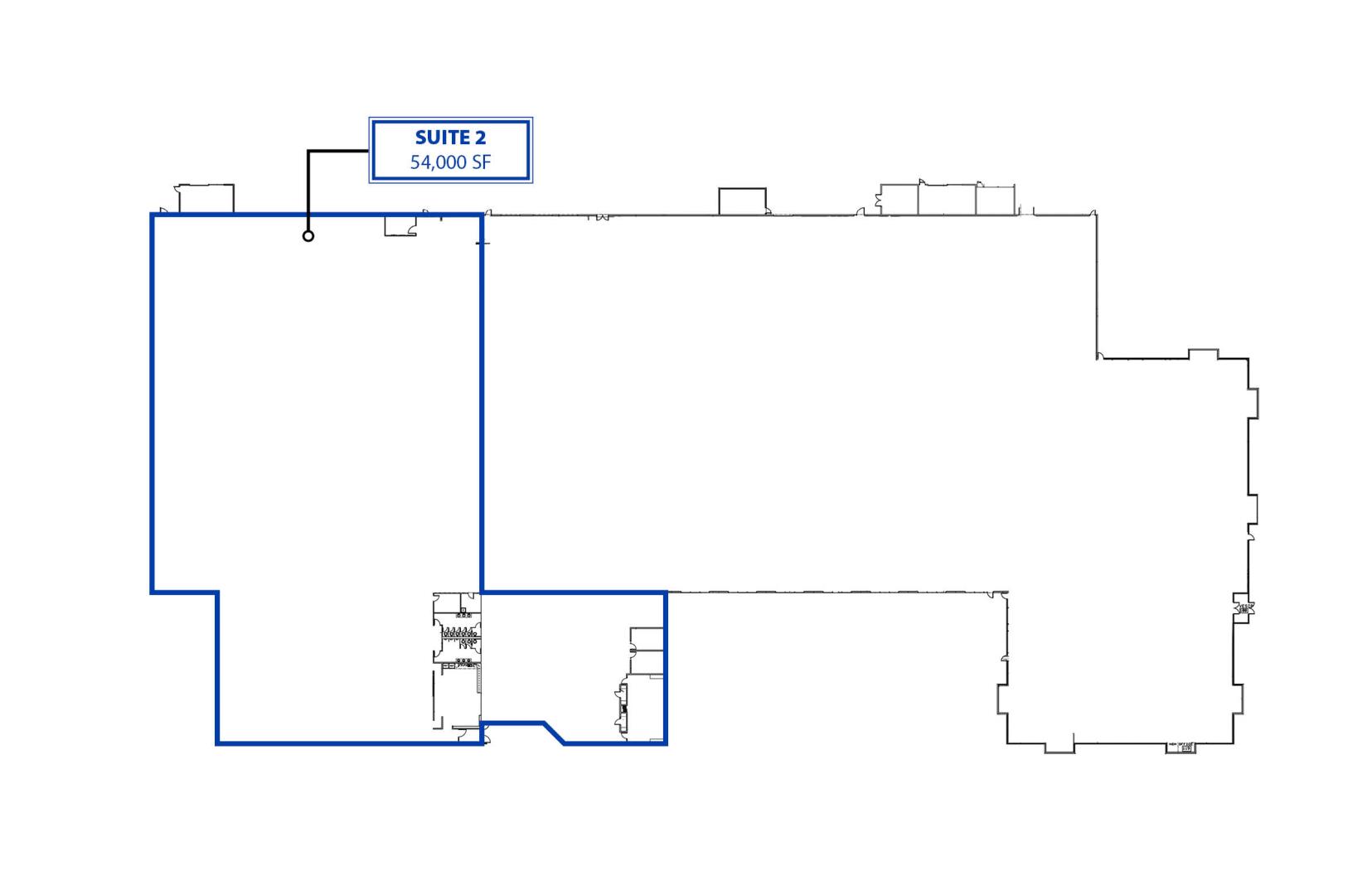
- Suite/Space Info2
- Currently Vacant54000
- Frontage
- Available SF54000
- Divisible To54000
- Floor Number
- Sub LeaseYes
- Sub Lease Terms
- Availability Status
- Date Available
- Move In Terms
- Building StatusExisting
- # of Buildings1
- # of Floors1
- # of Units
- # of Elevators
- Clearance Height Min
- Clearance Height Max
- Bay Depth
- Total Building SF139184
- Net Rentable Area0
- Total Office SF
- Largest Contiguous SF
- Lot SF575428
- Acres13.21
- Property TypeIndustrial
- Office Type
- Building Class
- CountyKootenai
- Vicinity
- Location Description
- Second Address
- Cross Street
- Market AreaNot Assigned
- Tax ID #C-4220-001-002-0
- Additional Parcels
- Zoning LM
- Year Built1999
- Year Renovated
- Completion Date
- Roof Type
- Construction Type
600 W Wilbur Avenue
This property boasts a striking concrete tilt-up construction adorned with a contemporary glass façade. The expansive secured site ensures seamless parking and loading, while four shared loading docks, including two at grade level, offer unparalleled convenience. The flexible layout is ideal for both manufacturing and technology users, providing the versatility essential for optimizing operations.



















