16615 E Broadway Ave
Spokane Valley WA 99037
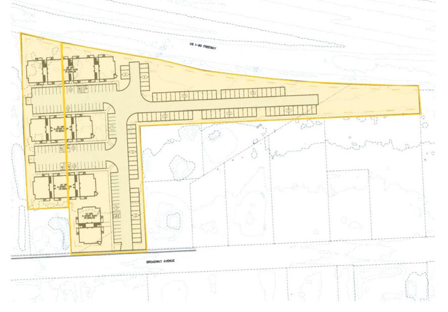
16615 & 16619 E Broadway Avenue
16615 E Broadway Ave Spokane Valley WA 99037
Listing #: 704873 | Status: Available | Last Modified: 11/18/2025 |
For Sale
- Phone:(509) 998-8162
- Email:brandonp@kiemlehagood.com
- Office Name:Kiemle Hagood
- Office Phone:(509) 783-7663
- Office Website:
- Call Listing AgentNo
- Use DiscretionNo
- Listing Price$ 1,850,000.0
- $/SF$ 930.6
- $/lot sf$ 08.8
- $/Unit$ 1,850,000.0
- Listing StatusAvailable
- Days on Market30
- Asset ClassMulti-Family, Land
- Terms
- Min Total SF0
- Max Total SF0
- Lease Rate Low$ 00.0
- Lease Rate High$ 00.0
- Heat Source
- Topography
- Total Units
- Water
- Electricity
- Storm Sewer
- SignageSignage on Building and Freestanding
- Anchor
- Building StatusExisting
- # of Buildings0
- # of Floors1
- # of Units
- # of Elevators
- Clearance Height Min
- Clearance Height Max
- Bay Depth
- Total Building SF1988
- Net Rentable Area0
- Total Office SF
- Largest Contiguous SF
- Lot SF210329
- Acres4.83
- Property TypeLand
- Office Type
- Building Class
- CountySpokane
- Vicinity
- Location Description
- Second Address
- Cross Street
- Market AreaSpokane Valley
- Tax ID #45131.9004
- Additional Parcels45131.9005, 45131.9006, 45131.9030
- ZoningRHD - Residential High Density
- Year Built1977
- Year Renovated
- Completion Date
- Roof Type
- Construction Type
APARTMENT / ASSISTED LIVING DEVELOPMENT OPPORTUNIT
-Total of 4.83 acre site positioned for redevelopment. Per Spokane Valley RHD zoning-106 allowable apartment units (22 per acre). Basic mock up for 96 units which would maintain the 4 Br, 2 bath house for rental or resale purposes. -Possible to buy neighboring additional +/- 2 acres! Call for more information on this -Spokane Valley mandated by State of Washington to update their comp plan by end of 2026-possibly increasing unit density -This is unique opportunity remaining in the heart of Spokane Valley for redevelopment. With many options for creatively identifying the best structure and timing to redevelop. -Walking distance to Lowe’s, Walmart, Big 5 Sporting Goods, Panda Express, and many other goods and services on Sullivan! -Call to discuss some creative options on this property!








