900 - 916 Industry Dr
Tukwila WA 98188
Seattle Exchange @ Southcenter - Building 22
900 - 916 Industry Dr Tukwila WA 98188
Listing #: 705278 | Status: Available | Last Modified: 12/2/2025 |
For Lease
- Phone:(206) 773-2682
- Email:sdurkin@lee-associates.com
- Office Name:Lee & Associates Commercial Real Estate Services
- Office Phone:(425) 454-4242
- Office Website:
- Agent Phone:(425) 891-1424
- Agent Email:jbrussa@lee-associates.com
- Agent Phone:(425) 818-2653
- Agent Email:shill@lee-associates.com
- Call Listing AgentNo
- Use DiscretionNo
- Blended Rent Min$ 02.0
- Blended Rent Max$ 02.0
- Total Monthly Rent$ 5,400.0
- Office Rent Min$ 00.0
- Office Rent Max$ 00.0
- Shell Rent Min$ 00.0
- Shell Rent Max$ 00.0
- Lease TypeIndustrial Gross
- Listing StatusAvailable
- Days on Market25
- Asset ClassIndustrial
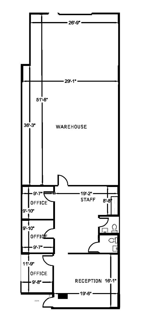
- Suite/Space Info910
- Currently Vacant
- Frontage
- Available SF2700
- Divisible To2700
- Floor Number
- Sub Lease Terms
- Availability Status
- Date Available
- Move In Terms
- Min Office SF1122
- Max Office SF1122
- Min Industrial SF
- Max Industrial SF
- Min Total SF0
- Max Total SF0
- Clearance Height Min
- Clearance Height Max
- Bay Depth
- Dock High Doors
- Semi-Dock Doors
- Grade Level Door Count
- Crane Count
- Building StatusExisting
- # of Buildings1
- # of Floors1
- # of Units10
- # of Elevators
- Clearance Height Min0
- Clearance Height Max
- Bay Depth
- Total Building SF19200
- Net Rentable Area19200
- Total Office SF6137
- Largest Contiguous SF2700
- Lot SF338897
- Acres7.78
- Property TypeIndustrial
- Office Type
- Building Class
- CountyKing
- Vicinity
- Location Description
- Second Address
- Cross Street
- Market AreaTukwila
- Tax ID #2523049015
- Additional Parcels
- ZoningTUC-WP
- # Covered Spaces0
- # Uncovered Spaces0
- Total Parking Spots0
- Parking Ratio0
- Year Built1976
- Year Renovated1978
- Completion Date
- Roof Type
- Construction TypeConcrete, Tiltwall
2,700 SF Warehouse for Lease
"LIMITED TIME LEASING PROMOTION: Now offering a promotional lease rate of $1.00/SF/month for the first full year of lease term on eligible spaces. Please inquire with the leasing team for more information!" Centrally located park with office and industrial spaces from 200-10,000 square feet; next to Southcenter Mall with quick access to all major freeways, including I-5, I-405, Highways 167, 509, 99, and Rainier Avenue. Located minutes from area amenities and Sea-Tac Airport. On-site management. Recently renovated with new ownership, this park offers a high image option for smaller square footage users.

