1018 - 1034 Industry Dr
Tukwila WA 98188
Seattle Exchange @ Southcenter - Building 34
1018 - 1034 Industry Dr Tukwila WA 98188
Listing #: 705291 | Status: Available | Last Modified: 12/2/2025 |
For Lease
- Phone:(206) 773-2682
- Email:sdurkin@lee-associates.com
- Office Name:Lee & Associates Commercial Real Estate Services
- Office Phone:(425) 454-4242
- Office Website:
- Agent Phone:(425) 891-1424
- Agent Email:jbrussa@lee-associates.com
- Agent Phone:(425) 818-2653
- Agent Email:shill@lee-associates.com
- Call Listing AgentNo
- Use DiscretionNo
- Blended Rent Min$ 02.0
- Blended Rent Max$ 02.0
- Total Monthly Rent$ 4,814.0
- Office Rent Min$ 00.0
- Office Rent Max$ 00.0
- Shell Rent Min$ 00.0
- Shell Rent Max$ 00.0
- Lease TypeIndustrial Gross
- Listing StatusAvailable
- Days on Market25
- Asset ClassIndustrial
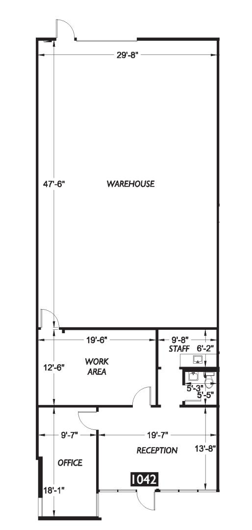
- Suite/Space Info1042
- Currently Vacant2407
- Frontage
- Available SF2407
- Divisible To2407
- Floor Number
- Sub Lease Terms
- Availability Status
- Date Available
- Move In Terms
- Min Office SF954
- Max Office SF954
- Min Industrial SF
- Max Industrial SF
- Min Total SF0
- Max Total SF0
- Clearance Height Min
- Clearance Height Max
- Bay Depth
- Dock High Doors
- Semi-Dock Doors
- Grade Level Door Count
- Crane Count
- Building StatusExisting
- # of Buildings1
- # of Floors1
- # of Units
- # of Elevators0
- A/CYes
- Clearance Height Min0
- Clearance Height Max
- Bay Depth
- Total Building SF17480
- Net Rentable Area2406
- Total Office SF1039
- Largest Contiguous SF2100
- Lot SF460865
- Acres10.58
- Property TypeIndustrial
- Office Type
- InvestmentYes
- Building Class
- CountyKing
- Vicinity
- Location Description
- Second Address
- Cross Street
- Market AreaTukwila
- Tax ID #2523049071
- Additional Parcels
- ZoningTUC-WP
- # Covered Spaces0
- # Uncovered Spaces100
- Total Parking Spots100
- Parking Ratio0
- Year Built1978
- Year Renovated
- Completion Date
- Roof Type
- SprinklersYes
- Construction TypeMasonry
2,407 SF Warehouse for Lease
"LIMITED TIME LEASING PROMOTION: Now offering a promotional lease rate of $1.00/SF/month for the first full year of lease term on eligible spaces. Please inquire with the leasing team for more information!" Centrally located park with office and industrial spaces from 200-10,000 square feet; next to Southcenter Mall with quick access to all major freeways, including I-5, I-405, Highways 167, 509, 99, and Rainier Avenue. Located minutes from area amenities and Sea-Tac Airport. On-site management. Recently renovated with new ownership, this park offers a high image option for smaller square footage users.

