1495 11th Ave NW
Issaquah WA 98027
1495 11th Avenue NW
1495 11th Ave NW Issaquah WA 98027
Listing #: 705925 | Status: Available | Last Modified: 12/4/2025 |
For Sale
Kip Durrell
- Phone:(425) 462-6972
- Email:kip.durrell@cbre.com
- Office Name:CBRE
- Office Phone:(253) 572-6355
- Office Website:www.cbre.com
Scott Davis
- Agent Phone:(425) 462-6912
- Agent Email:scott.davis@cbre.com
Jeff Jochums
- Agent Phone:(425) 462-6971
- Agent Email:jeff.jochums@cbre.com
Showing Instructions
- Call Listing AgentNo
- Use DiscretionNo
Price Information
- Listing Price$ 00.0
- $/SF$ 00.0
- Listing StatusAvailable
- Days on Market1
- Asset ClassOffice
- Terms
Detail Listing Information
- Min Total SF0
- Max Total SF0
- Lease Rate Low$ 00.0
- Lease Rate High$ 00.0
- Heat Source
- Total Units
Utilities
- Water
- Electricity
- Storm Sewer
Retail Information
- SignageSignage on Building and Freestanding
- Anchor
Associated Files
Building Information
- Building StatusExisting
- # of Buildings1
- # of Floors1
- # of Units1
- # of Elevators
- Clearance Height Min
- Clearance Height Max
- Bay Depth
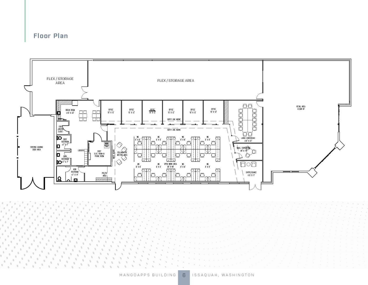
- Total Building SF9208
- Net Rentable Area9208
- Total Office SF
- Largest Contiguous SF
- Lot SF43560
- Acres1.0
Property Type
- Property TypeRetail
- Office Type
- Building Class
Location
- CountyKing
- VicinityPickering Place
- Location Description
- Second Address
- Cross Street
- Market AreaIssaquah
- Tax ID #3557500185
- Additional Parcels
- ZoningUC
Parking Information
- # Covered Spaces0
- # Uncovered Spaces46
- Total Parking Spots46
- Parking Ratio
Construction
- Year Built1998
- Year Renovated
- Completion Date
- Roof Type
- Construction Type
MangoApps Building
Search Tags
Grocery Anchor
Listing Images

